While we are all seeing the “light at the end of the tunnel” with daily updated vaccine news, there is one news that brought the better and improved way of living: working from home (WFH).
During the global pandemic, 88% of businesses around the world have either encourage or required to work from home. What is more surprising is that 67% of those businesses would continue the WFH practice after the pandemic!

So much has changed since I wrote this blog piece back in 2018-before we knew the letters, WFH, COVID etc – about the benefits and how they can apply in our new post-pandemic era!
Imagine if you can come to work with your pajamas. I know I know…I can see you guys putting hands up saying “what about the work-life” balance“, “can’t be productive over 50 hours per week“, “work smart vs work hard” etc. Besides, going to work with your pajamas can only work when you not meeting anyone (aka “no business”), So, why am I even contemplating the ridiculous situation of going to work with pajamas as a good thing?
At my architecture practice, Studio Jonah, we are getting more requests to do projects that incorporate the work space into their living quarters. We are seeing the trend not only from individuals who want to create their own work space in their homes, but also the developers who are planning their condo projects to include the work space within each condo units. Combining the work and home is becoming a major focal point of a project, rather than a minor wish list the clients would like to have. The allure of being able to come to work with pajamas is just too enticing of a concept for many people.
History of Flexible Space
Live– Work spaces are not a new phenomenon. Butcher shops, bakeries, taverns with the owners living upstairs have been around for centuries and still exist today in the form of mom and pop convenience stores and B & B’s, allowing self-employed people to simply walk down the stairs to work every day.
Today, with full-time jobs becoming increasingly scarce and telecommuting gaining in popularity, live–work is an appealing option for self-employed individuals searching for the ultimate work life balance. The greatest interest for this type of housing options come from city dwellers: professionals in the creative industries, as well as young entrepreneurs who are unable or unwilling to pay the high cost of buying or leasing office, workshop or studio space as well as additional living space.

Appeal of live-work space
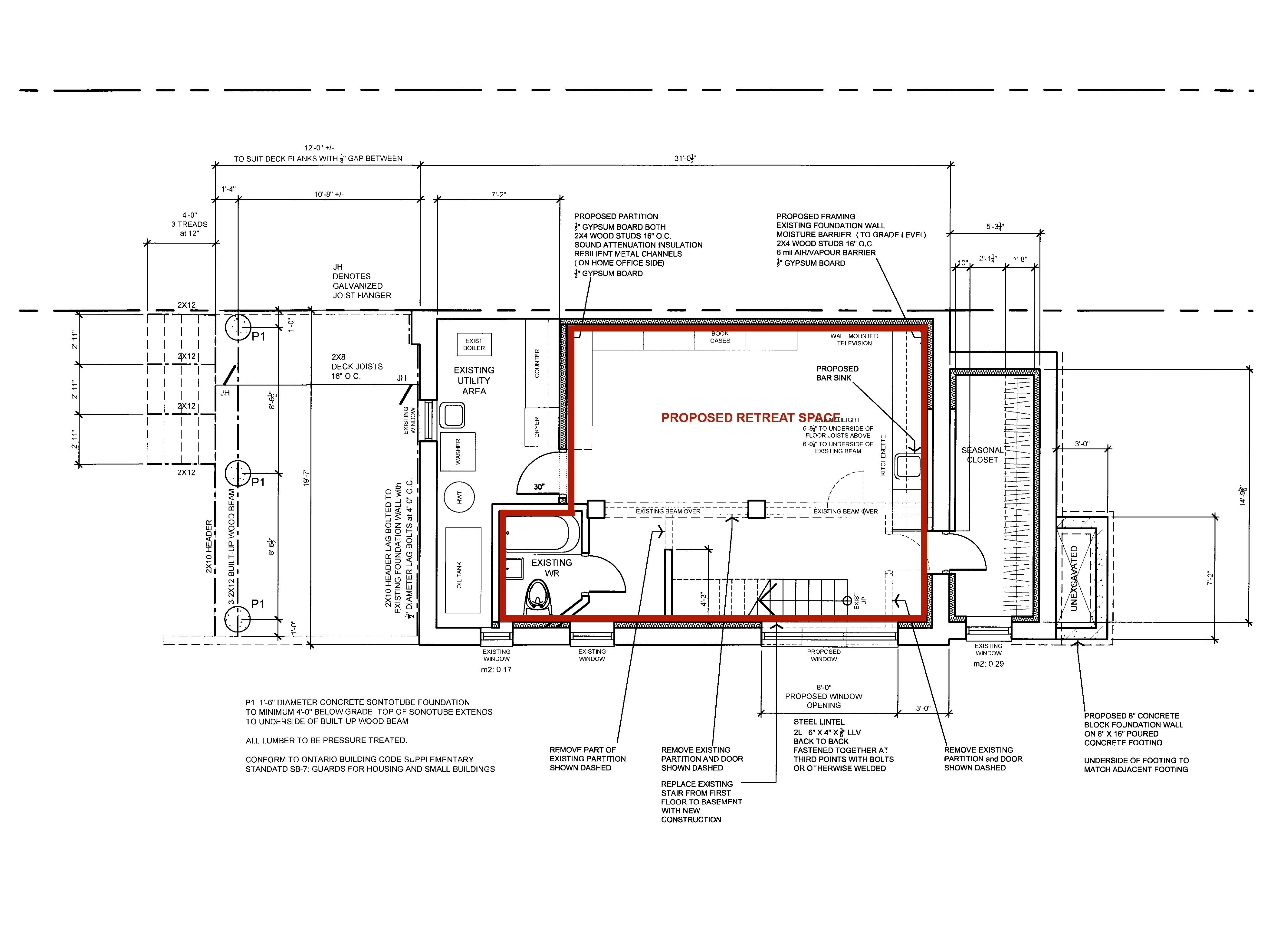
One of the recent projects our office finished, the client (husband) offers to set up a home office for his wife who wanted to go on a writing retreat for three months to finish her book. When he was faced having to run a household with 3 kids, the husband decides to resolve the difficult situation FAST, he proposed the “permanent” solution of creating the home office for his wife. It is the increasingly common type of project request our office gets; creating a Home office for family members who want to spend less time commuting to their work (or hide from the rest of the family members.) My guess is that it is not only the time-saving aspect that is attractive to the clients, but being able to own a place of their own within the craziness of their life.
It is not always easy to carve out a space that can accommodate work set up when houses and condos are getting smaller. However, it is possible with some careful planning and creative outside of box thinking. The challenge of repurposing old commercial buildings into live-work place is worth the time and effort. It all comes down to careful planning. With proper accommodation for things like varying heights, multiple fire ratings surveying and planning considerations as well as unique challenges of coordinating old mechanical system to a new one. The end result can be a one of a kind live work space that features a charming blend of old and new with lots of character.
“It is not always easy to carve out a space that can accommodate work area when our living spaces (houses, condos etc) are getting smaller”.


As our client shares her favorite activity at her new home office- people watching through the new rectangular window facing the street- she is forever grateful for her husband to come up with a permananet solution to her professional life. Besides, transforming their scary basement space to usable sunny and airy place has also been an unexpected perk for all the family members.
I am a proponent of going to work with pajamas (ok, maybe gym outfits). Just make sure to have a sturdy lock set up on the door 🙂
Please let me know what your wish lists are for your current or future home! We will post another design solution to your dilemma.

Thanks Jin. Where do you go to become productive?
LikeLike
Would love to see / how you organize your work space. Although, half of my work hours are spent elsewhere (job site, talking to contractors at the coffee shops, buses, etc), it is so important to have one’s own “productive” space. I call mine a “quiet” one, since I go there to think, and recharge for the coming days.
LikeLike
Great post! Love how clean and streamlined your work spaces looks. I’m a big believer in having a specific space dedicated to being productive.
LikeLike